Skip to content Skip to sidebar Skip to footer

Hatteras 2018 Floor Plan

Hatteras Floor Plan Down East Realty Custom Homes

Hatteras Floor Plan Down East Realty Custom Homes

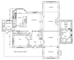
Hatteras 2018 floor plan. The new 105RPH features a larger bow area with seating the largest aft deck in her class and amenities typically reserved for larger vessels. The Hatteras Floor Plan Handout Created Date. This floor plan is not to scale.

1 King 1 King 1 King 1 Queen 1 Queen 2 Bunks. Feb 10 2014 - Rent Til Sundown a Soundfront NC vacation rental. SELECT THE MODEL FOR WHICH YOU WOULD LIKE TO VIEW ARCHIVES.

The gorgeous open floor plan includes two large bedrooms each with full walk-in closets and two huge bathrooms. From the large fenced-in yard ideal for dogs to the five. Matthew 1926 What may be impossible with man is completely possible with GOD.

The Hatteras villa even has two large balconies so that you can always have a place to relax soak in the salt air and admire the beautiful views of the Intracoastal Waterway. The Hatteras modular home plan includes beautiful exterior gables. This exclusive oceanfront home in the Tarheel Shores neighborhood has everything you need for a carefree retreat.

Our livable floor plans energy efficient features and robust new home warranty demonstrate our. Hatteras is a 2110 square foot cape floor plan with 3 bedrooms and 30 bathrooms. Browse photos floorplans rates and availability and book your Hatteras vacation online today.

110 North Glenburnie Road New Bern NC 28560 2526333101. With ground-level elevator access and a roll-in shower on the middle level Hatteras Dream is the perfect place for those with limited mobility. As you can see there is no doubt that this beach house is a true Hatteras Island charm.

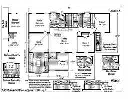
The large attic space soaking tub and large covered porch make this house a home. The base price of 68343 is the cost of manufacturing the home BEFORE alterations or upgrades are made.

The Hatteras Floor Plan Schell Brothers

The Hatteras Floor Plan Schell Brothers

Modular Homes Hatteras 2018 Modular Home Floor Plan

Modular Homes Hatteras 2018 Modular Home Floor Plan

Modular Homes Hatteras 2018 Modular Home Floor Plan

Modular Homes Hatteras 2018 Modular Home Floor Plan

The Hatteras Floor Plan Schell Brothers

The Hatteras Floor Plan Schell Brothers

Hatteras By Express Modular

Hatteras By Express Modular

Hatteras Home Builders In Nc Sc H H Homes

Hatteras Home Builders In Nc Sc H H Homes

Display Homes Hatteras

Display Homes Hatteras

Modular Homes Hatteras 2018 Modular Home Floor Plan

Modular Homes Hatteras 2018 Modular Home Floor Plan

The Hatteras Piccard Homes

The Hatteras Piccard Homes

Modular Homes Hatteras 2018 Modular Home Floor Plan

Modular Homes Hatteras 2018 Modular Home Floor Plan

Modular Homes Builders In Nc

Modular Homes Builders In Nc

Hatteras Floor Plans How To Plan Flooring

Hatteras Floor Plans How To Plan Flooring

Hatteras 2018 Modular Home Floor Plan Modular Homes

Hatteras 2018 Modular Home Floor Plan Modular Homes

Hatteras Home Builders In Nc Sc H H Homes

Hatteras Home Builders In Nc Sc H H Homes

Hatteras 1 Youtube

Hatteras 1 Youtube

Modular Homes Hatteras 2018 Modular Home Floor Plan

Modular Homes Hatteras 2018 Modular Home Floor Plan

Hatteras Floorplan 1654 Sq Ft Trilogy At Rio Vista 55places

Hatteras Floorplan 1654 Sq Ft Trilogy At Rio Vista 55places

Hatteras H H Homes Homes For Sale In Community Location City Community Location State Home Builders Hatteras New Home Communities

Hatteras H H Homes Homes For Sale In Community Location City Community Location State Home Builders Hatteras New Home Communities

The Hatteras Floor Plan Schell Brothers

The Hatteras Floor Plan Schell Brothers

8404 Breton Way Harrisburg Nc 28075 Mls 3310181

8404 Breton Way Harrisburg Nc 28075 Mls 3310181

Gt45x Hatteras Yachts

Gt45x Hatteras Yachts

Yacht For Sale 63 Hatteras Yachts Fort Lauderdale Fl Denison Yacht Sales

Yacht For Sale 63 Hatteras Yachts Fort Lauderdale Fl Denison Yacht Sales

Modular Homes Hatteras 2018 Modular Home Floor Plan

Modular Homes Hatteras 2018 Modular Home Floor Plan

1

1

Hatteras The Ultimate Battlewagons Boattest

Hatteras The Ultimate Battlewagons Boattest

Cape Hatteras Example Saga Realty Construction

Cape Hatteras Example Saga Realty Construction

Hatteras A 1824 Living Concepts

Hatteras A 1824 Living Concepts

The Hatteras Floor Plan Schell Brothers

The Hatteras Floor Plan Schell Brothers

18645 Hatteras St 181 Tarzana Ca 91356 Mls Sr18150707 Redfin

18645 Hatteras St 181 Tarzana Ca 91356 Mls Sr18150707 Redfin

Hatteras Home Builders In Nc Sc H H Homes

Hatteras Home Builders In Nc Sc H H Homes

Hatteras French Country Floorplan 1866 Sq Ft The Highlands At Meadowlands 55places

Hatteras French Country Floorplan 1866 Sq Ft The Highlands At Meadowlands 55places

Gt65 Carolina Convertible Sportfishing Yacht Hatteras Yachts

Gt65 Carolina Convertible Sportfishing Yacht Hatteras Yachts

1992 Hatteras 46 Sportfish Florida Yachts International

1992 Hatteras 46 Sportfish Florida Yachts International

Canalfront Vacation Rental Hatteras Fisherman

Canalfront Vacation Rental Hatteras Fisherman

Display Homes Hatteras

Display Homes Hatteras

18645 Hatteras St 161 Tarzana Ca 91356 Mls Sr20230221 Redfin

18645 Hatteras St 161 Tarzana Ca 91356 Mls Sr20230221 Redfin

Hatteras Gt45x Flybridge 2018 Boattest

Hatteras Gt45x Flybridge 2018 Boattest

4947 Cape Hatteras Dr Clermont Fl 34714 Realtor Com

4947 Cape Hatteras Dr Clermont Fl 34714 Realtor Com

Floor Plan Details Kituwah Manufacturing Llc

Floor Plan Details Kituwah Manufacturing Llc

Living Large The Hatteras Villa At Trinity Landing

Living Large The Hatteras Villa At Trinity Landing

Sosua Fishing Yacht Ref 0997 Sosua Fishing Tours And Charters Puerto Plata

Sosua Fishing Yacht Ref 0997 Sosua Fishing Tours And Charters Puerto Plata

Yacht For Sale 63 Hatteras Yachts Fort Lauderdale Fl Denison Yacht Sales

Yacht For Sale 63 Hatteras Yachts Fort Lauderdale Fl Denison Yacht Sales

Beach Villas Ocean Keyes

Beach Villas Ocean Keyes

Salty Sea Gal 7933 Hatteras Vacation Rentals Resort Realty Of The Outer Banks

Salty Sea Gal 7933 Hatteras Vacation Rentals Resort Realty Of The Outer Banks

Oceanside Vacation Rental Hooked On Hatteras

Oceanside Vacation Rental Hooked On Hatteras

Denison Yachting 75 Hatteras Panacera 2018 Walkthrough Facebook

Denison Yachting 75 Hatteras Panacera 2018 Walkthrough Facebook

M60 Hatteras Yachts

M60 Hatteras Yachts

Hatteras Champion Homes Down East Realty Custom Homes

Hatteras Champion Homes Down East Realty Custom Homes

3

3

7252018 20229 PM.

Private Pool Available April 22nd to October 20th. Start Virtual Tour View Floor Plan. This image represents an approximation of the layout of this model it is not exact. View more property details sales history and Zestimate data on Zillow. Hatteras is a 2110 square foot cape floor plan with 3 bedrooms and 30 bathrooms. Feb 10 2014 - Rent Til Sundown a Soundfront NC vacation rental. 12 x 18 9 x 16 11 x 15 10 x 13 8 x 8 Title. This floor plan is not to scale. The large attic space soaking tub and large covered porch make this house a home.


The Hatteras modular home plan includes beautiful exterior gables. The 105RPH is the ultimate statement yacht. Review the plan or browse additional cape style homes. The Hatteras Floor Plan Handout Created Date. 3s A Charm is such a unique home in the fact that it sits within a hundred yards of both the Atlantic Ocean and the Pamlico Sound. View more property details sales history and Zestimate data on Zillow. Our livable floor plans energy efficient features and robust new home warranty demonstrate our.

Post a Comment for "Hatteras 2018 Floor Plan"